ID:
MM49
Typ ponuky
Predaj
Typ nehnuteľnosti
Byt
Výmera
158 m2
Počet izieb
4
Cena
589000 EUR
Dispozícia
4 izbové
Okres
Bratislava
Obec
Staré Mesto
Ulica
Gorkého
Ďalšie informácie o nehnuteľnosti

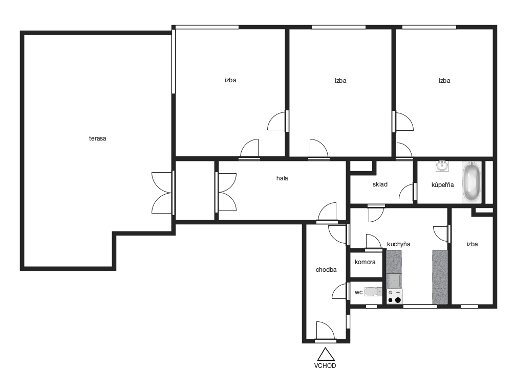
AVE estate Vám ponúka NA PREDAJ priestranný 4-izbový byt s päťdesiat metrovou terasou v historickom centre Starého Mesta, na Gorkého ulici.

Celková výmera bytu je 102 m², ku ktorým patrí terasa s rozlohou 50 m² – ideálne miesto na relax, rôzne športové aktivity alebo príjemné posedenie. Dispozícia zahŕňa tri priestranné izby, kuchyňu s praktickou menšou miestnosťou, špajzu, kúpeľňu, samostatné WC a sklad.

K bytu taktiež prislúcha pivnica o výmere 6 m2.

Byt si zachoval pôvodné, ale mimoriadne dobre udržiavané prvky – drevené okná, pôvodné kľučky, dvere a parkety, elektroinštalácia bola obnovovaná v roku 1998. Vďaka železobetónovej konštrukcii je možné dispozične upraviť priečky podľa vlastných predstáv.

Byt sa nachádza na 2. poschodí zo šiestich v budove z roku 1938, ktorá sa radí medzi najlepšie architektonické diela svojej doby. Budova je vyhotovená so železobetónovou konštrukciou, fasáda je obložená spišským travertínom a vstupné priestory zdobí kvalitný šedý mramor. Súčasťou je pôvodná kabína výťahu doplnená modernou technológiou.

Lokalita:
Byt stojí na poslednej prejazdnej ulici pred pešou zónou Starého Mesta, v bezprostrednej blízkosti divadiel Pavla Országha Hviezdoslava, historickej budovy SND, Reduty a dunajskej promenády. Parkovanie je možné cez rezidentskú kartu.

Cena: 589 000 €

Byt je bez tiarch a ihneď voľný, HÚ možný.

V cene je zahrnutý kompletný právny servis a sprostredkovanie predaja vrátane prevodu vlastníckych práv.

Lokalita

Gorkého ulica ponúka jedinečnú kombináciu pokojného mestského života a pulzujúcej atmosféry Starého Mesta. 

Ste len pár minút pešo od historických divadiel, kaviarní a živých ulíc plných kultúry a umenia. 

Vďaka blízkosti pešej zóny a možnosti parkovania máte všetko pohodlne po ruke, no zároveň si môžete vychutnať pokoj a komfort vlastného domova v srdci mesta.

Kontakt na makléra

Martin Maťufka
matufka [at] aveestate.sk

Kontaktný formulár

Vyplňte kontaktný formulár a zažite na vlastnej koži čo to znamená pracovať s tými najlepšími na trhu, ktorí Vašu nehnuteľnosť odprezentujú spôsobom, ktorý ju ukáže najväčšiemu množstvu potencionálnych kupujúcich. Prečo ne/predávať s niekým iným keď môžete predávať s najlepšími?

Oboznámil/a som sa s ochranou osobných údajov. Jeho obsahu som porozumel/a a v celom rozsahu s ním súhlasím.