Typ ponuky
Predaj
Typ nehnuteľnosti
Rodinný dom
Výmera
160 m2
Počet izieb
4
Cena
259000 EUR
Pri dome výmera pozemku
540 m2
Dispozícia
4 izbové
Okres
Dunajská Streda
Obec
Jastrabie Kračany
Ďalšie informácie o nehnuteľnosti

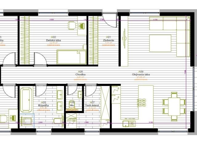
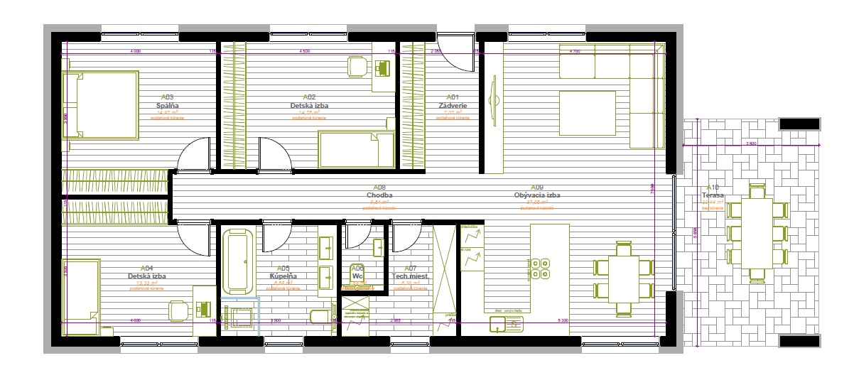
Ponúkame na predaj príjemný samostatný rodinný dom v novej lokalite Jastrabie Kračany. Dom má zastavanú plochu 160m2 a úžitkovú plochu 135m2 s terasou o výmere 20m2. Dom bude postavaný na pozemku o výmere 540m2.

Moderná dispozícia domu sa skladá zo zádveria, troch priestranných izieb, kúpeľňa s vaňou, WC a sprchovým kútom, samostatné WC, technická miestnosť, obývacia izba spojená s kuchyňou a vstupom na trasu.

Dom bude postavený z tehly, zateplenie, plastové okná s izolačným troj-sklom, podlahové kúrenie a ohrev teplej vody bude zabezpečovať tepelné čerpadlo. Dom bude napojený na elektrinu, vodu-studňa a žumpu. Kanalizácia bude pripravená k napojeniu do domu. 

V dome bude realizovaná pred-príprava na klimatizáciu, alarm, vonkajšie žalúzie. Parkovanie a prístup do domu budú zo zámkovej dlažby. Celý dom bude oplotený vrátanie brán.

Cena domu v prevedení HOLODOM je 259 000 eur.
Možnosť dokončenia do štandardu za doplatok.

Výstavba domov je plánovaná na jar 2025.

Domy je možné financovať pomocou hypotekarneho úveru s ktorým Vám radi pomôžeme.

V prípade záujmu od ďalšie informácie nás neváhajte kontaktovať

Lokalita

Jastrabie Kračany majú výbornou dostupnosť do Dunajskej Stredy, alebo na dialničný obchvat R7/D4. Dostupnosť do Bratislavy je asi 30 minút. Domy sa budú nachádzať vo veľmi tichej a komornej lokalite obce.

Kontakt na makléra

Mgr. Vlasta Štěpničková
Špecialistka na luxusné nehnuteľnosti
Realitná maklérka
stepnickova [at] aveestate.sk

Kontaktný formulár

Vyplňte kontaktný formulár a zažite na vlastnej koži čo to znamená pracovať s tými najlepšími na trhu, ktorí Vašu nehnuteľnosť odprezentujú spôsobom, ktorý ju ukáže najväčšiemu množstvu potencionálnych kupujúcich. Prečo ne/predávať s niekým iným keď môžete predávať s najlepšími?

Oboznámil/a som sa s ochranou osobných údajov. Jeho obsahu som porozumel/a a v celom rozsahu s ním súhlasím.